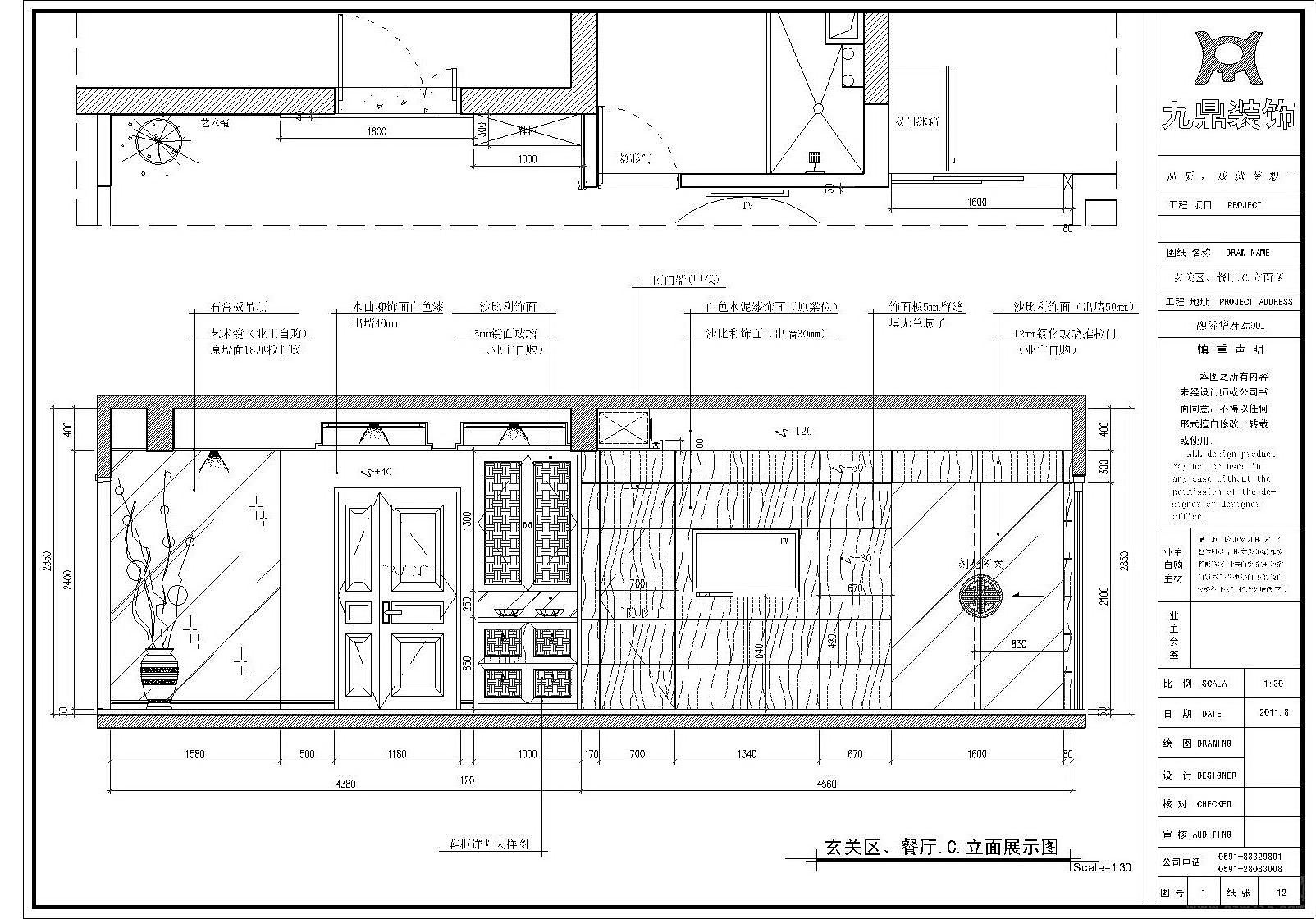
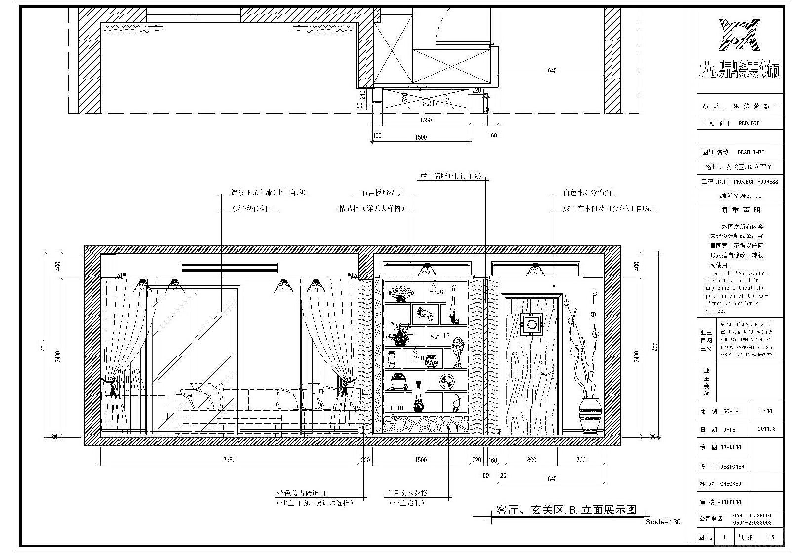
厦门市 1分钟玩转装修
  • 内空间以白色为主,深色做点缀,力求做到简洁、明快。
  • 内空间以白色为主,深色做点缀,力求做到简洁、明快。
  • 内空间以白色为主,深色做点缀,力求做到简洁、明快。
  • 内空间以白色为主,深色做点缀,力求做到简洁、明快。
内空间以白色为主,深色做点缀,力求做到简洁、明快。 1/4
预约免费设计
0
融侨华府
+86

《用户协议》 《隐私政策》 《共享说明》

恭喜您预约成功 24小时内会有客服人员与您联系,确认您的具体需求

分享至

2025-11-02 21:53:11 216.73.216.102