厦门市 1分钟玩转装修
  • 保利公园九里
  • 保利公园九里
  • 保利公园九里
  • 保利公园九里
  • 保利公园九里
  • 保利公园九里
  • 保利公园九里
  • 保利公园九里
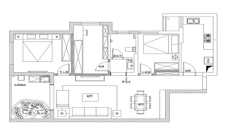
保利公园九里 1/8
预约免费设计
0
保利公园九里
+86

《用户协议》 《隐私政策》 《共享说明》

恭喜您预约成功 24小时内会有客服人员与您联系,确认您的具体需求

分享至

2025-11-26 03:23:26 216.73.216.135