厦门市 1分钟玩转装修
  • 餐厅
  • 厨房
  • 厨房
  • 客厅
  • 卧室
  • 客厅
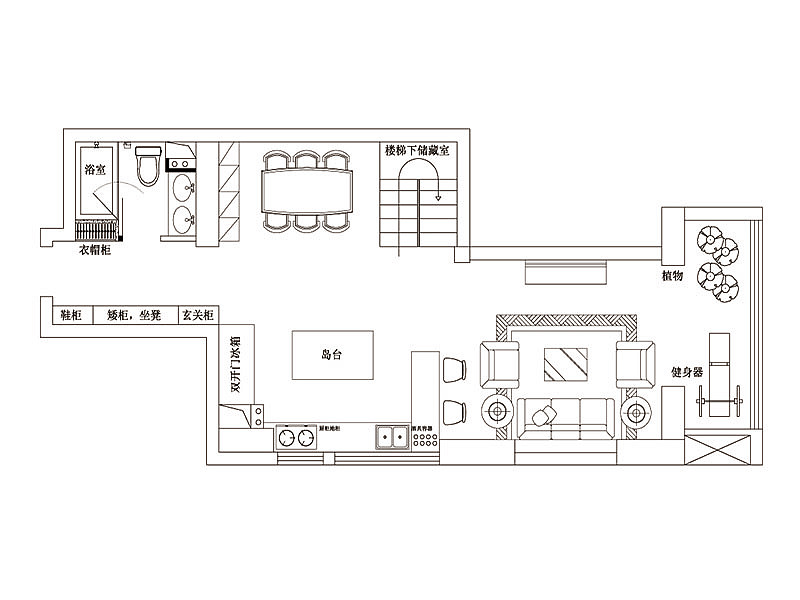
  • 户型图
餐厅 1/7
预约免费设计
0
君临天下
+86

《用户协议》 《隐私政策》 《共享说明》

恭喜您预约成功 24小时内会有客服人员与您联系,确认您的具体需求

分享至

2025-11-12 11:26:23 216.73.216.149