厦门市 1分钟玩转装修
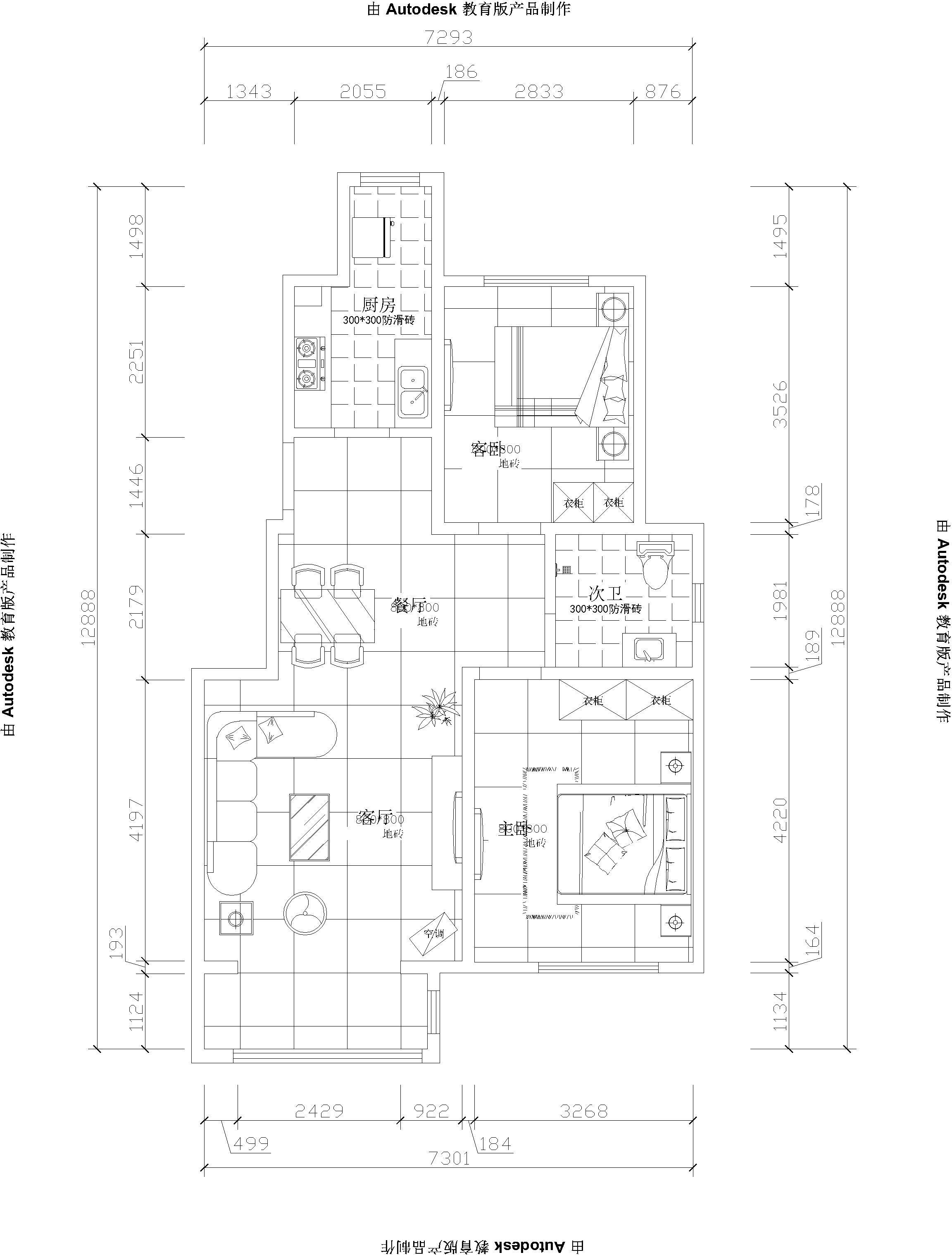
  • 户型图
  • 1
  • 2
  • 3
  • 4
  • 5
户型图 1/6
预约免费设计
0
亚泰澜89㎡—现代简约风格
+86

《用户协议》 《隐私政策》 《共享说明》

恭喜您预约成功 24小时内会有客服人员与您联系,确认您的具体需求

分享至

2025-11-12 00:45:29 216.73.216.149