厦门市 1分钟玩转装修
  • 《北欧风情》
  • 《北欧风情》
  • 《北欧风情》
  • 《北欧风情》
  • 《北欧风情》
  • 《北欧风情》
  • 《北欧风情》
  • 《北欧风情》
  • 《北欧风情》
  • 《北欧风情》
  • 《北欧风情》
  • 《北欧风情》
  • 《北欧风情》
  • 《北欧风情》
  • 《北欧风情》
  • 《北欧风情》
  • 《北欧风情》
  • 《北欧风情》
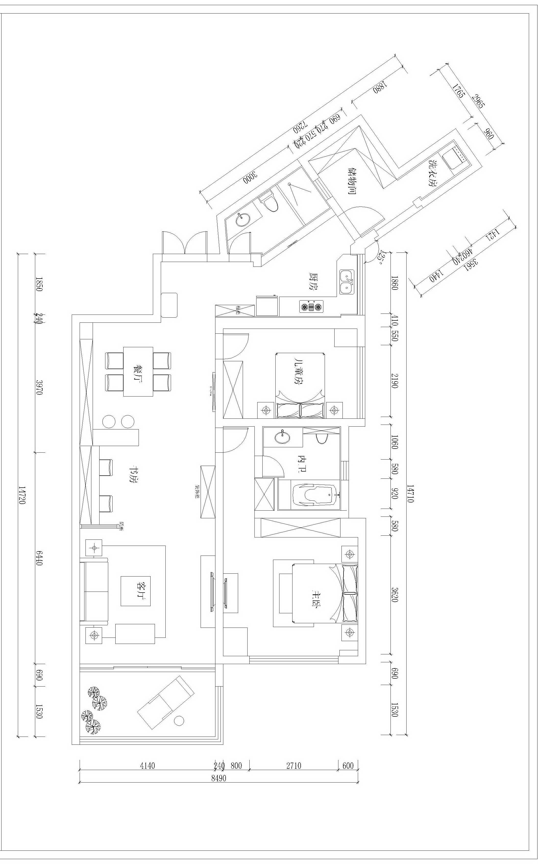
《北欧风情》 1/18
预约免费设计
0
《北欧风情》
+86

《用户协议》 《隐私政策》 《共享说明》

恭喜您预约成功 24小时内会有客服人员与您联系,确认您的具体需求

分享至

2025-10-03 08:24:14 216.73.216.51