厦门市 1分钟玩转装修
  • 客厅
  • 书房
  • 主卧
  • 次卧
  • 餐厅
  • 客厅
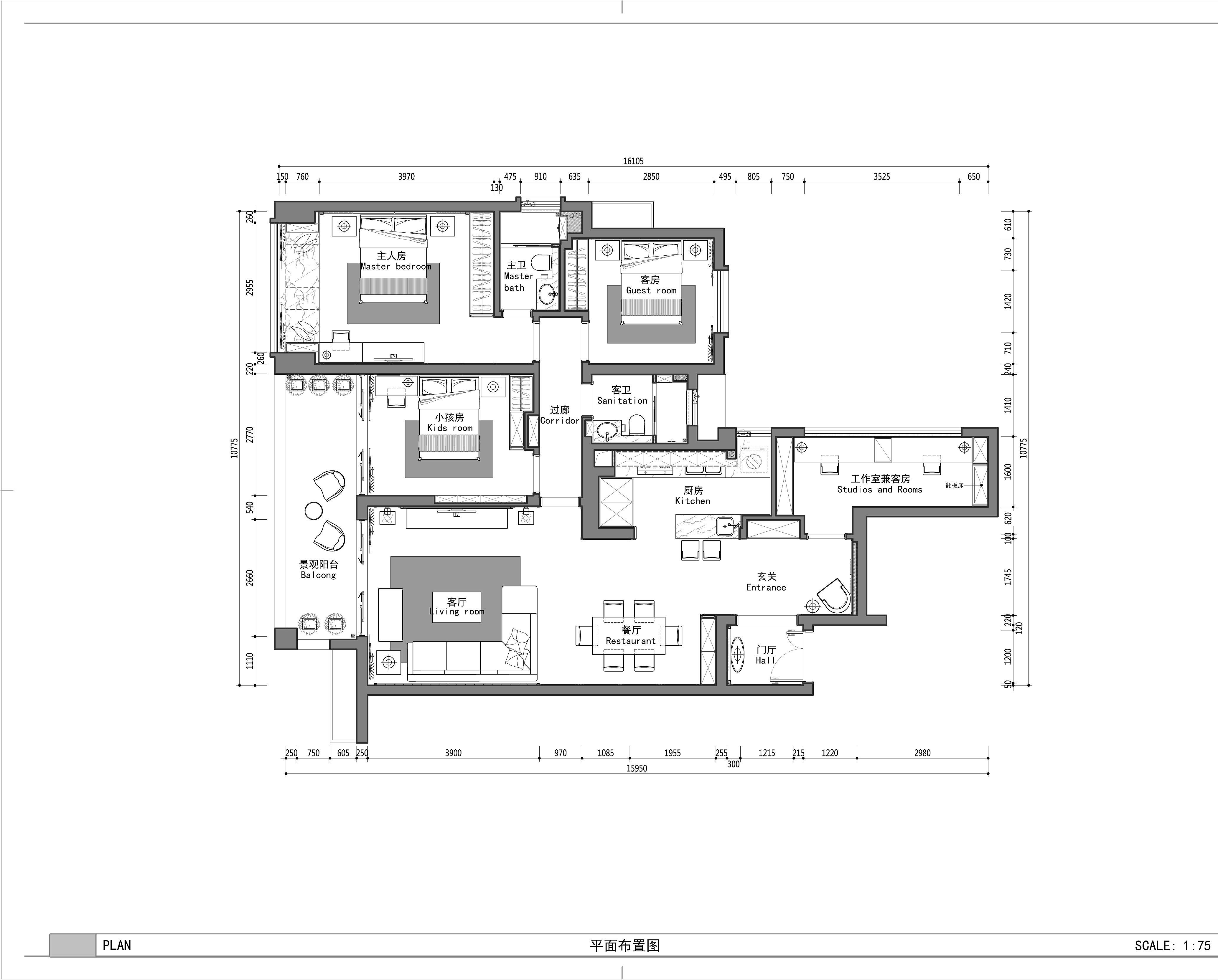
  • 平面图
客厅 1/7
预约免费设计
0
新中式混搭
+86

《用户协议》 《隐私政策》 《共享说明》

恭喜您预约成功 24小时内会有客服人员与您联系,确认您的具体需求

分享至

2025-10-04 03:20:59 216.73.216.216