厦门市 1分钟玩转装修
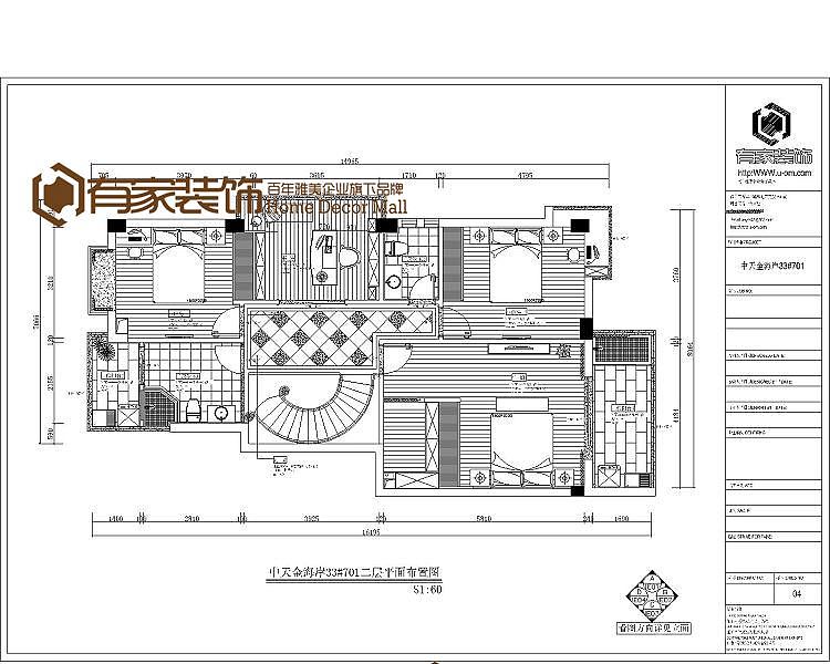
  • 中天金海岸33# 欧式
  • 中天金海岸33# 欧式
  • 中天金海岸33# 欧式
中天金海岸33# 欧式 1/3
预约免费设计
0
有家装饰.中天金海岸33#
+86

《用户协议》 《隐私政策》 《共享说明》

恭喜您预约成功 24小时内会有客服人员与您联系,确认您的具体需求

分享至

2025-11-01 14:11:51 216.73.216.102