厦门市 1分钟玩转装修
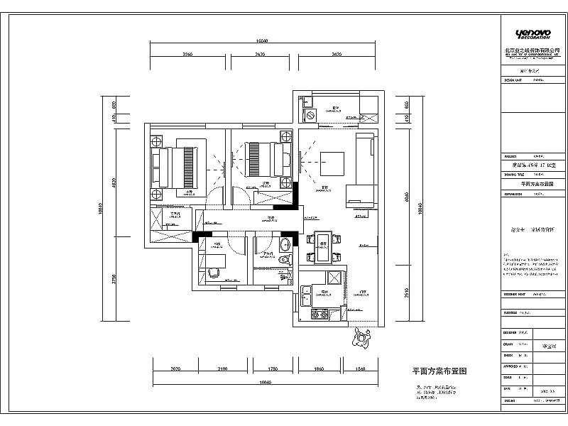
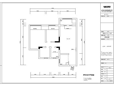
  • 翡翠锦园现代风格
  • 翡翠锦园现代风格
  • 翡翠锦园现代风格
  • 翡翠锦园现代风格
翡翠锦园现代风格 1/4
预约免费设计
914
翡翠锦园现代风格
+86

《用户协议》 《隐私政策》 《共享说明》

恭喜您预约成功 24小时内会有客服人员与您联系,确认您的具体需求

分享至

2025-11-12 01:22:43 216.73.216.149