厦门市 1分钟玩转装修
  • 以简洁的表现形式来满足人们对空间环境那种感性的、本
  • 以简洁的表现形式来满足人们对空间环境那种感性的、本
  • 以简洁的表现形式来满足人们对空间环境那种感性的、本
  • 以简洁的表现形式来满足人们对空间环境那种感性的、本
以简洁的表现形式来满足人们对空间环境那种感性的、本 1/4
预约免费设计
0
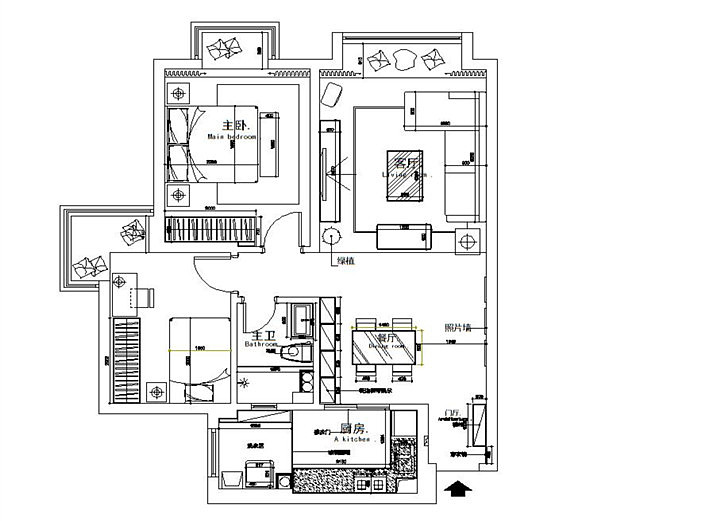
现代简约97平2居室
+86

《用户协议》 《隐私政策》 《共享说明》

恭喜您预约成功 24小时内会有客服人员与您联系,确认您的具体需求

分享至

2025-11-03 13:46:59 216.73.216.102