厦门市 1分钟玩转装修
  • 金新鼎邦全套户型设计,欢迎前来咨询设计相关
  • 金新鼎邦全套户型设计,欢迎前来咨询设计相关
  • 金新鼎邦全套户型设计,欢迎前来咨询设计相关
  • 金新鼎邦全套户型设计,欢迎前来咨询设计相关
  • 金新鼎邦全套户型设计,欢迎前来咨询设计相关
金新鼎邦全套户型设计,欢迎前来咨询设计相关 1/5
预约免费设计
555
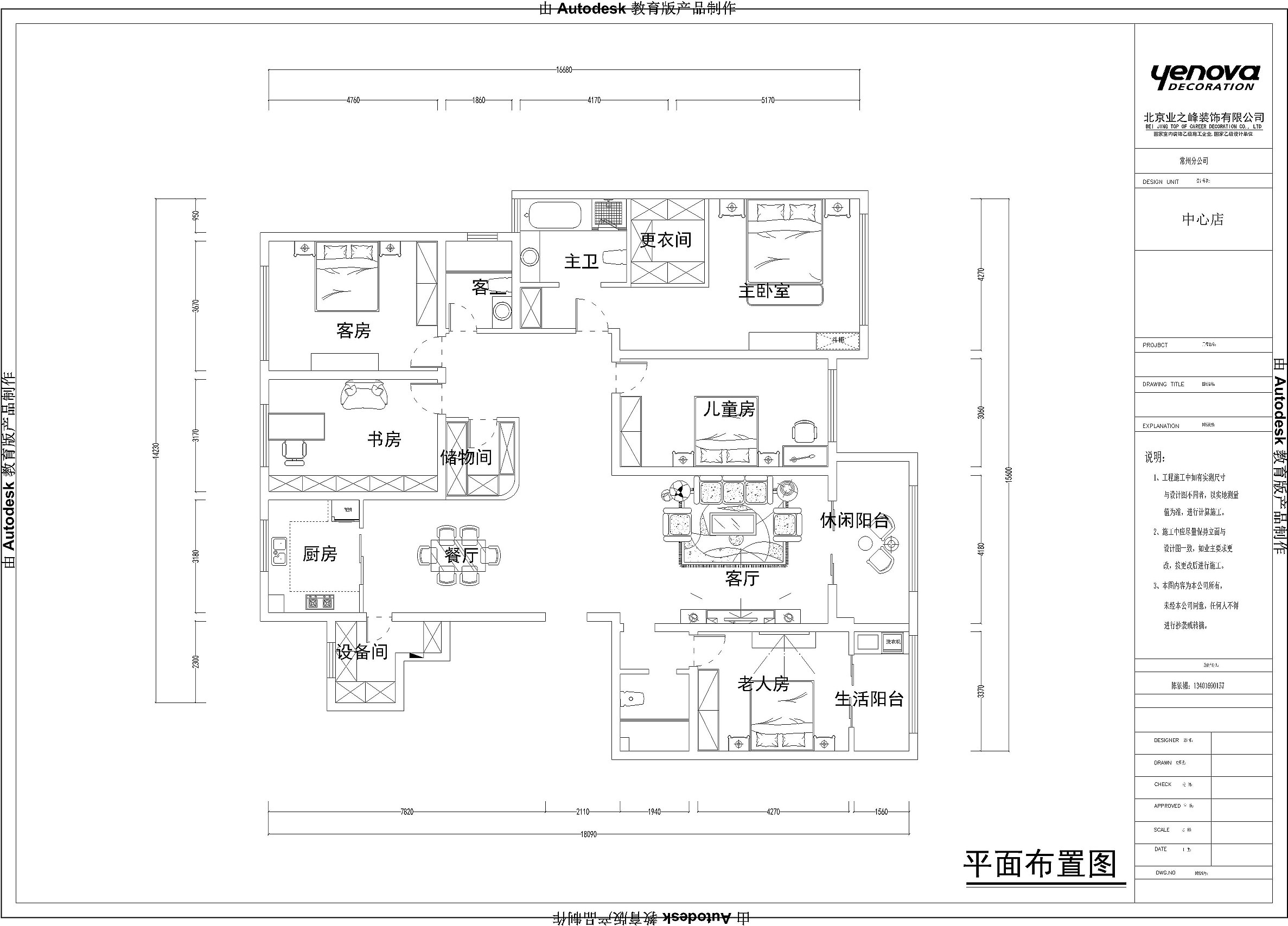
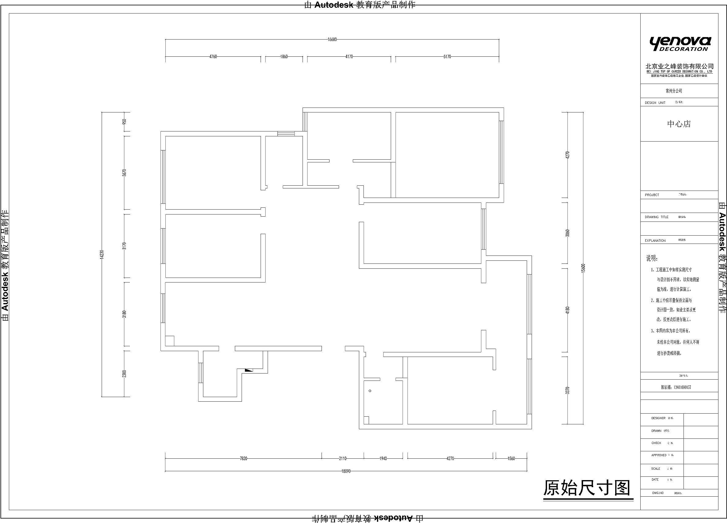
金新鼎邦户型设计系列一
+86

《用户协议》 《隐私政策》 《共享说明》

恭喜您预约成功 24小时内会有客服人员与您联系,确认您的具体需求

分享至

2025-11-12 02:53:48 216.73.216.149