厦门市
1分钟玩转装修
首页
找灵感
装修攻略
装修百科
服务
×
400服务热线
在线客服咨询
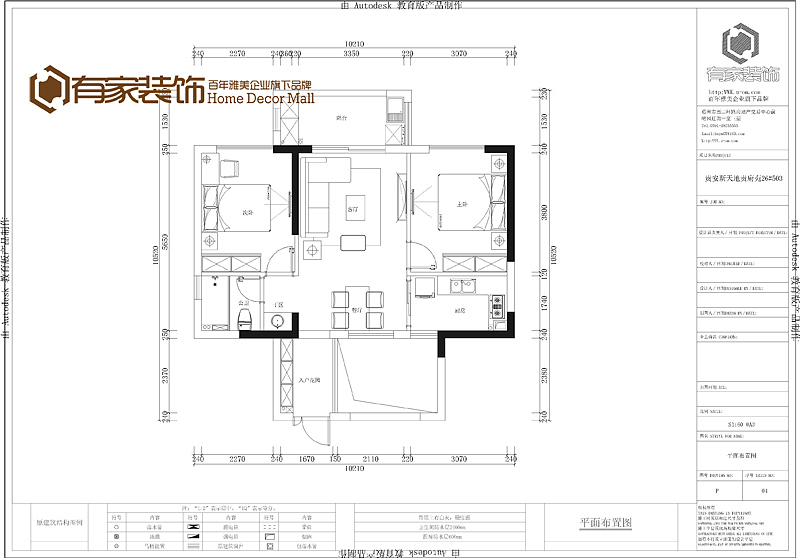
【有家装饰】贵安新天地
1/2
预约免费设计
0
贵安新天地
+86
《用户协议》
《隐私政策》
《共享说明》
恭喜您预约成功
24小时内会有客服人员与您联系,确认您的具体需求
分享至
取消
2025-11-01 11:38:19 216.73.216.102