厦门市 1分钟玩转装修
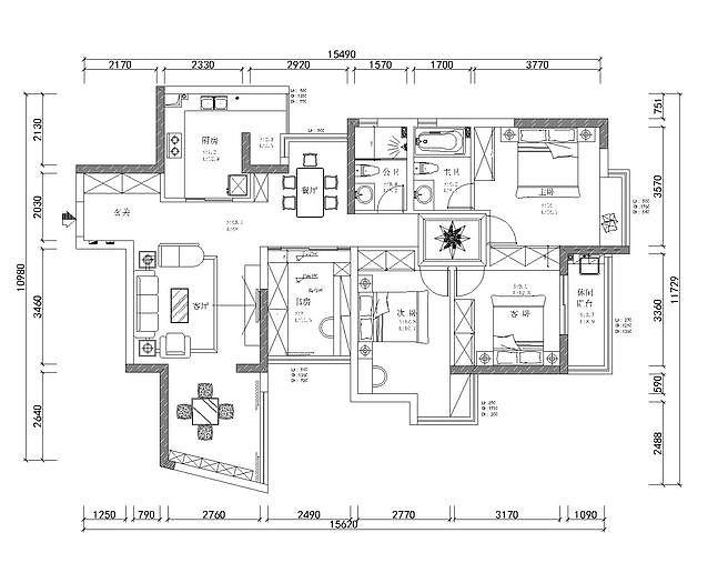
  • 本案采用简欧风格。本方案平面改动不多,一是对过道的
  • 本案采用简欧风格。本方案平面改动不多,一是对过道的
  • 本案采用简欧风格。本方案平面改动不多,一是对过道的
  • 本案采用简欧风格。本方案平面改动不多,一是对过道的
  • 本案采用简欧风格。本方案平面改动不多,一是对过道的
本案采用简欧风格。本方案平面改动不多,一是对过道的 1/5
预约免费设计
0
简欧风格三居室
+86

《用户协议》 《隐私政策》 《共享说明》

恭喜您预约成功 24小时内会有客服人员与您联系,确认您的具体需求

分享至

2025-11-04 04:34:11 216.73.216.102