厦门市 1分钟玩转装修
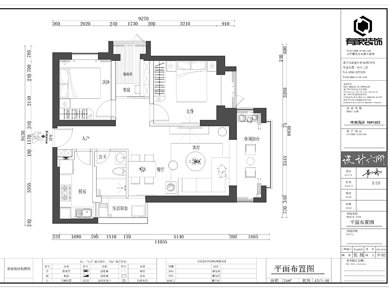
  • 本案为田园风格、从格局上充分利用空间、将生活阳台放
  • 本案为田园风格、从格局上充分利用空间、将生活阳台放
  • 本案为田园风格、从格局上充分利用空间、将生活阳台放
本案为田园风格、从格局上充分利用空间、将生活阳台放 1/3
预约免费设计
0
中央海岸
+86

《用户协议》 《隐私政策》 《共享说明》

恭喜您预约成功 24小时内会有客服人员与您联系,确认您的具体需求

分享至

2025-11-05 11:28:19 216.73.216.102