厦门市 1分钟玩转装修
  • 本空间以“浅白.木居”为主题、室内多采用木质材料、
  • 本空间以“浅白.木居”为主题、室内多采用木质材料、
  • 本空间以“浅白.木居”为主题、室内多采用木质材料、
本空间以“浅白.木居”为主题、室内多采用木质材料、 1/3
预约免费设计
0
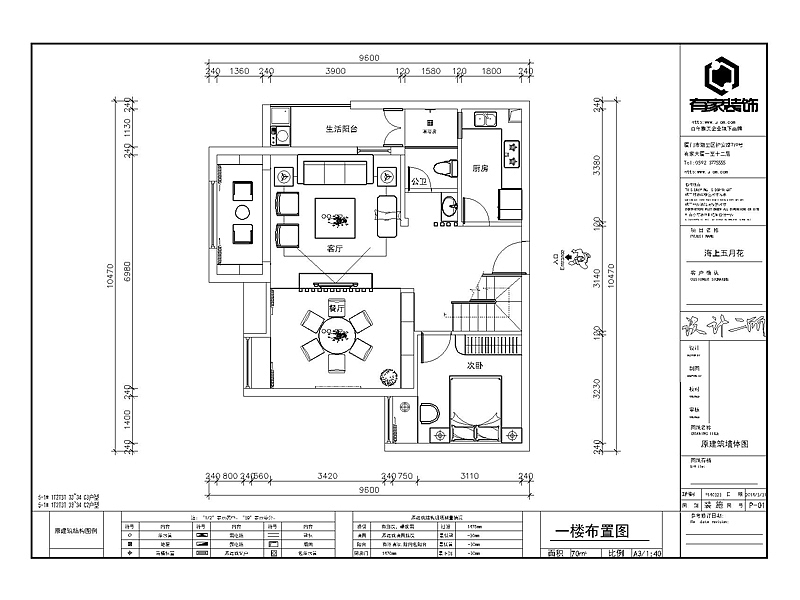
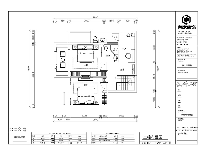
集美自建房
+86

《用户协议》 《隐私政策》 《共享说明》

恭喜您预约成功 24小时内会有客服人员与您联系,确认您的具体需求

分享至

2025-11-06 22:15:20 216.73.216.102