厦门市 1分钟玩转装修
  • 您对生活的态度,就是我设计的风格。
  • 您对生活的态度,就是我设计的风格。
  • 您对生活的态度,就是我设计的风格。
  • 您对生活的态度,就是我设计的风格。
您对生活的态度,就是我设计的风格。 1/4
预约免费设计
0
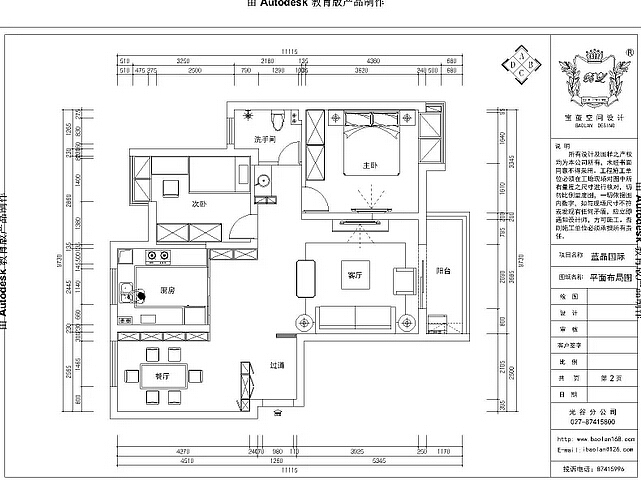
长航蓝晶国际
+86

《用户协议》 《隐私政策》 《共享说明》

恭喜您预约成功 24小时内会有客服人员与您联系,确认您的具体需求

分享至

2025-11-25 04:19:34 216.73.216.36