厦门市 1分钟玩转装修
  • 简约风注重细节的设计和注重空间的利用率,我们重在为
  • 简约风注重细节的设计和注重空间的利用率,我们重在为
  • 简约风注重细节的设计和注重空间的利用率,我们重在为
  • 简约风注重细节的设计和注重空间的利用率,我们重在为
  • 简约风注重细节的设计和注重空间的利用率,我们重在为
  • 简约风注重细节的设计和注重空间的利用率,我们重在为
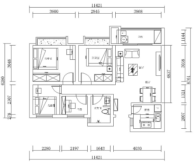
简约风注重细节的设计和注重空间的利用率,我们重在为 1/6
预约免费设计
0
中铁品园
+86

《用户协议》 《隐私政策》 《共享说明》

恭喜您预约成功 24小时内会有客服人员与您联系,确认您的具体需求

分享至

2025-10-04 02:48:28 216.73.216.216